Ten huize van... Architecten Achtergael

schedule vr. 21 mrt. 13:30

place Start: Politiecommissariaat Brugge Lodewijck Coiseaukaai 2, Brugge

Op vrijdag 21 maart 2014 brengt BVA een bezoek aan Architecten Achtergael.
Vooraf wordt één van hun realisaties bezocht, met name het nieuwe politiekantoor in Brugge.

© Architecten Achtergael

Lieven Achtergael behaalde zijn diploma in 1987 aan het Stedelijk Hoger Architectuur Instituut Gent. Als architect is hij reeds 25 jaar actief, waarvan 15 jaar docent aan de masterstudenten architectuur van de Artesis Plantijn Hogeschool Antwerpen. Na een langdurige samenwerking met Stéphane Beel richtte hij in 2011 Architecten Achtergael op.

Architecten Achtergael heeft bij verschillende wedstrijden en opdrachten aangetoond op korte termijn complexe ontwerpopgaves te kunnen vertalen naar kwalitatieve stedenbouwkundige en architecturale ontwerpen. Onder de belangrijkste werken wordt het nieuwe Gerechtsgebouw in Gent, het Jongerenontmoetingscentrum Rabot in Gent (genomineerd voor de Mies van der Rohe Award), de reconversie van de militaire hospitalen in Oostende en Antwerpen en het nieuwe Politiecommissariaat in Brugge gerekend. Recent werden nog de uitbreiding van cultuurhuis De Warande in Turnhout, het nieuwe stadskantoor in Lier en een fuifzaal in Turnhout opgeleverd.

De kracht van het bureau ligt in de grote diversiteit aan opdrachten: masterplanning, stadsontwerp, publiekprivate samenwerkingen, stedenbouwkundig onderzoek, residentiële, culturele, kantoor- en publieke gebouwen... Er geldt eenzelfde ambitieniveau, zowel voor grote als kleine projecten, voor de grote maat en het kleine detail, zowel tijdens het ontwerpproces als tijdens de uitvoering.

Programma:
13u30 Onthaal en registratie


© Architecten Achtergael

Er wordt afgesproken in het Politiecommissariaat Brugge,
Lodewijck Coiseaukaai 2 in Brugge.
Klik hier voor het liggingsplan.

14u00 Bezoek aan het Politiecommissariaat

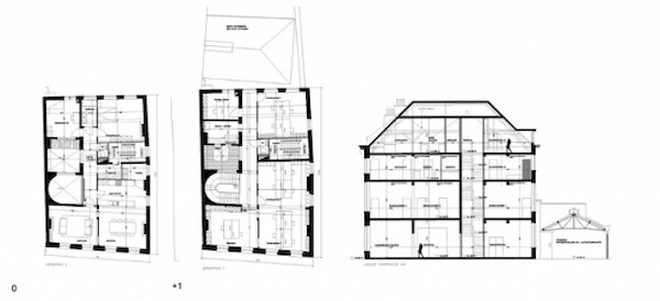
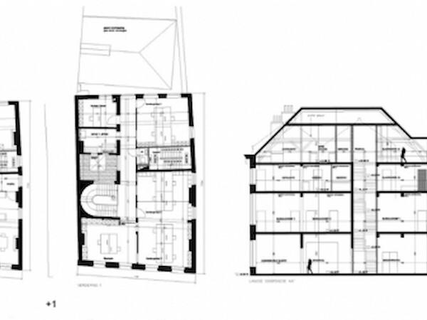
De decentralisatie van het nieuwe politiecommissariaat naar de rand van de stad zal een belangrijke impuls geven aan de toekomstige reconversie van de havensite. Door de zorgvuldige inplanning en dimensionering van het compact, zwevend kantoorvolume, schrijft het zich in binnen de structuur en schaal van het voormalig havengebied.

De toegang tot het gebouw wordt op twee niveaus georganiseerd. Het maaiveld bevat alle publieke functies en is opengewerkt. Op het ondergrondse niveau is het binnenplein de operationele schakel tussen het logistiek complex, het arrestantencomplex, de kleedkamers en de technische ruimtes.
De kantoren van het administratief complex worden in een wit, groot, compact volume boven het maaiveld verheven en bestendigt op die manier de kwaliteit van de uitgestrekte open havenruimte.
Door het uitgebreide ondergrondse programma sluit de kroonlijst aan op de bouwhoogtes in de omgeving. Op die manier wordt het politiecommissariaat een schakel tussen de twee aanwezige schalen: haven- en residentiële architectuur.


© Filip Dujardin

Het duurzaam ontwerpen van een goede, comfortabele leef- en werkomgeving voor het nieuwe politiecommissariaat, vraagt een integrale benadering. Het creëren van een gezond en comfortabel binnenklimaat in combinatie met een minimaal verbruik aan energie en materiaal staat centraal in deze benadering.
Deze aanpak resulteert in een E-peil van 30 punten, wat dit gebouw tot één van de meest duurzame overheidsgebouwen maakt, die tot op heden gerealiseerd werden.

Bezoek aan het gebouw onder begeleiding van de architecten Lieven Achtergael en Isabelle Dierickx.

15u00 Verplaatsing naar het kantoor te Gent
Gelieve bij de inschrijving op te geven of u langs Gent naar Brugge gaat en of er in uw wagen plaatsen beschikbaar zijn, zodat we een carpooling kunnen organiseren.

16u00 Bezoek aan het kantoor, Burgstraat 22a, Gent
en toelichting over de werking van het bureau
Klik hier voor het liggingsplan.


© Architecten Achtergael

Bij de renovatie van het 19e-eeuws pand hebben Lieven Achtergael Architecten en Labt, het design label van Frank Ternier, gekozen voor een dubbel gebruik van het gelijkvloers. De vitrine hebben beide partijen samen vernieuwd en doet zowel dienst als showroom voor Labt en als vergaderzaal voor Architecten Achtergael.


© Architecten Achtergael

Verder bevinden er zich de gemeenschappelijke ruimtes zoals keuken, sanitair, fietsenstalling en ontvangst. Het bovenliggende verdiep doet dienst als bureaus. Hier en daar zijn wijzigingen in de circulatie van het gebouw aangebracht en hedendaagse elementen aan toegevoegd. Toch is overal het historisch karakter voelbaar gebleven.

Toelichting recente projecten o.a. Dungelhoeffsite Lier


© Architecten Achtergael

De Warande Turnhout - Verbindingsbrug - Fuifzaal


© Filip Dujardin

17u30 Afsluitende drink
Nabespreking bij een drankje aangeboden door de gastheren.

Met steun van

Foto's

Verslag

BVA BEZOEKT ARCHITECTEN ACHTERGAEL

Op 21 maart lokte de lentezon een zestigtal architecten naar Brugge om er onder een staalblauwe lucht het nieuw Politiecommissariaat architecturaal te verkennen. Het bezoek aan het vorig jaar opgeleverde gebouw vormde immers de perfecte introductie tot het bezoek aan het bureau van Lieven Achtergael en zijn medewerkers in het kader van de BVA-reeks “Ten huize van”.

In de ruime gelijkvloerse “Plaza” leidde BVA-bestuurslid Patrick Derycker het team in. Hij maakte van de gelegenheid gebruik om de deelnemers te wijzen op het belang van BVA voor de architecten, met onder meer de alerte aanwezigheid van BVA op diverse beleidsniveaus en binnen verschillende bouwtechnische organen.

Architecte Isabelle Dierickx gaf vervolgens toelichting over de wedstrijdformule en de samenwerking binnen het bouwteam, over de specifieke omgevingsruimte en de vormelijke uitwerking van het gebouw, over het belang van een open publieke opvang, over de comfortabele maar intieme kantoorruimtes en over de noodzakelijke ruimtes voor afscherming en bescherming van personen. Ook de specifieke toegankelijkheid versus beveiliging was een specifiek ontwerpgegeven dat de architectuur mee bepaalde.

De groep werd daarop in twee gesplitst, waarna Isabelle Dierickx en Lieven Achtergael elk een groep doorheen het gebouw rondleidden: publieke ruimte die geen geheimen kent en ontvankelijk is, kantoren als lichte werkplekken met doorzicht naar de omgeving via een gevelomhullende zonnefilter in wit strekmetaal, patio’s die de circulatiezones en kantoren ruim van daglicht voorzien... om af te sluiten in het ondergronds arrestantencomplex.

Iedereen nam daarop de wagen om na een vlotte rit opgevangen te worden in het kantoor architecten Achtergael, hartje Gent. Een mooi historisch hoekpand met architectuuretalage was “the place to be”.

"Architecten Achtergael" staat voor een team, aldus zaakvoerder Lieven Achtergael, die als eerste het woord nam. Dat wordt weerspiegeld in de verschillende bureauruimtes op de verdieping waar alle architecten een werkplek hebben. De opdrachten bestrijken uiteenlopende sectoren die binnen kleine teams tot uitvoering gebracht worden. Na een kort overzicht van recente realisaties gaf hij het woord aan enkele medewerkers om hun projecten meer specifiek toe te lichten.

Architect Kris Broidioi ging dieper in op het project CC De Warande te Turnhout en architecten Jeffrey Berghman en Vincent De Keyser gaven tekst en uitleg bij de ombouw van de cadettenschool in Lier tot Stadskantoor. Beide projecten tonen hoe het team Achtergael sterke stadsbepalende architectuur evalueert en een nieuw aangezicht geeft. Materialisatie en vormgeving zoeken een verband met wat er was in een duidelijk afgetekende aanwezigheid.

Aan het eind van de middag werden de deelnemers vergast op een heerlijk drankje met versnapering waarbij met de andere deelnemers en de medewerkers van het bureau kon worden nagepraat en gediscussieerd. Architecten ontmoeten, architectuur beleven en inspiratie delen zijn immers de sleutels tot het succes van deze “Ten huize van” -formule.

Met dank aan de gastheer en Wienerberger, structurele sponsor van de reeks.

Andere activiteiten